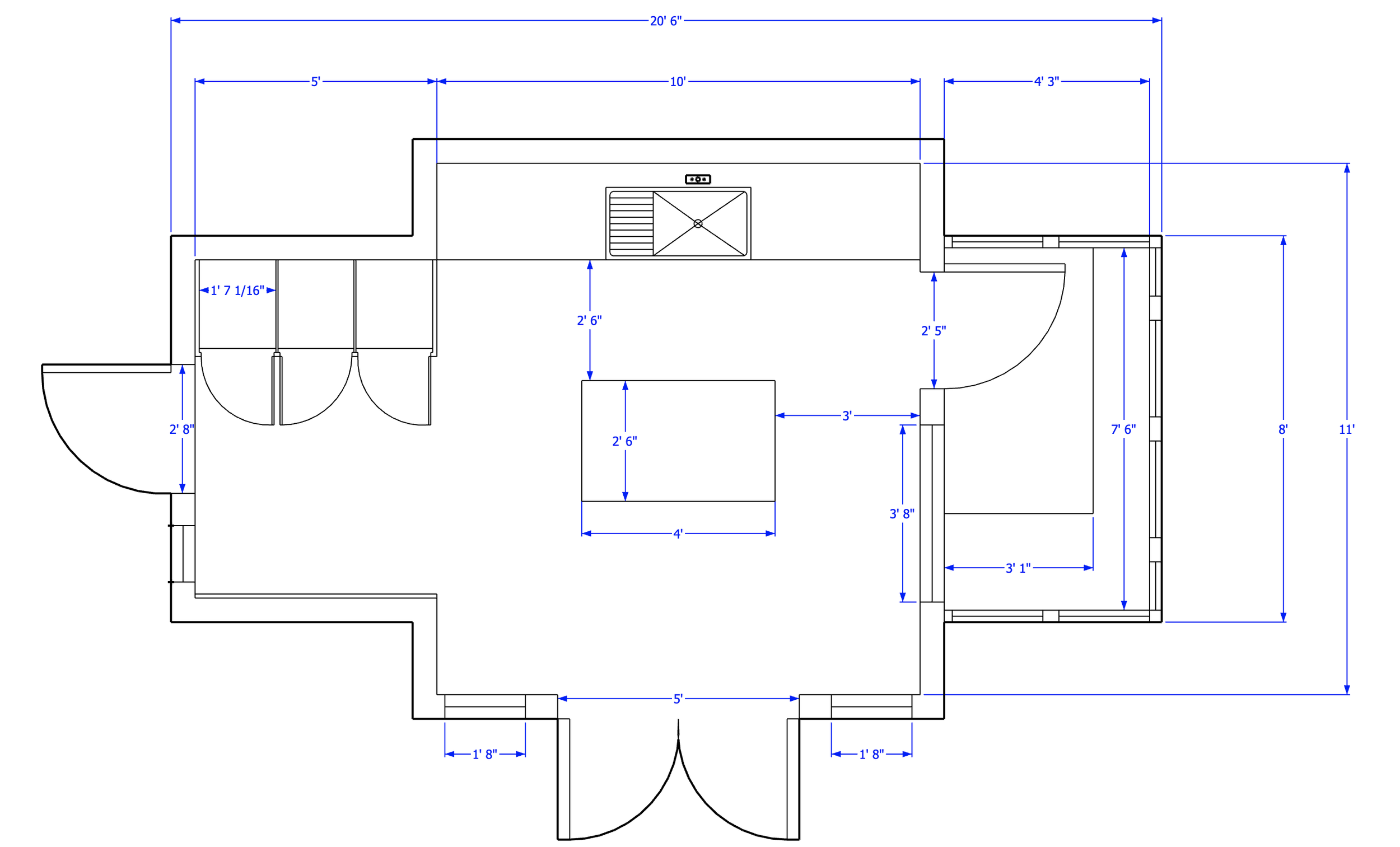
The Garden Shed
Full plans for a backyard garden shed from ground up.
Marietta, GA
Full plans for a backyard garden shed from ground up.
Marietta, GA