The Backyard Hideaway

A Patio Concept.

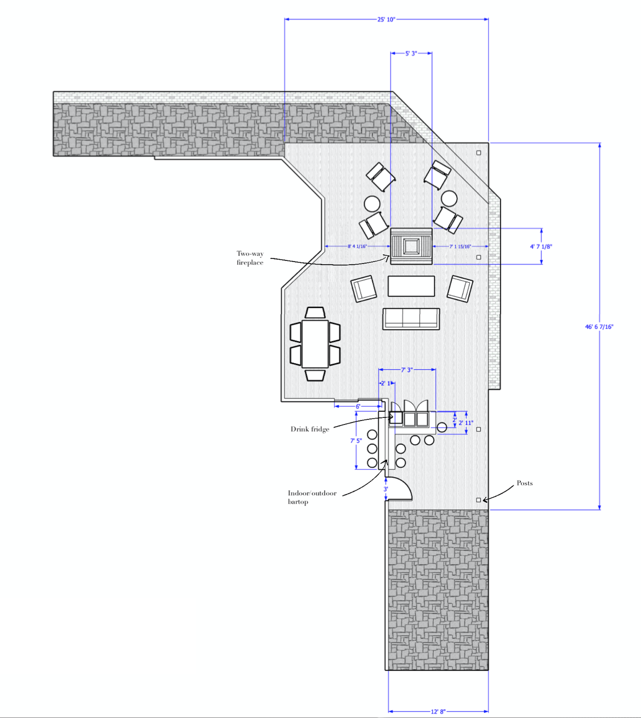
Roof added over an existing slab; double sided fireplace; indoor/outdoor bar.

East Cobb, Marietta, GA

The Plans

Architectural floor plan of an outdoor patio with seating areas, a fire fireplace, a drink fridge, an indoor/outdoor bartop, and structural details with measurements.

The clients’ were in need of a better space for friends and family to gather for hangouts and sporting events. The existing, uncovered, patio was not cutting it for their hosting needs. By covering the space and adding in a double-sided fireplace, the clients would be able to gather with friends while the kids had a sense of separation.

An indoor/outdoor bar was pitched as a way to easily extend the hosting area indoors as food and drink are being prepared. This, along with an additional L shaped bar provided plenty of seating for the whole group throughout the space.